3.产品介绍与安装使用说明
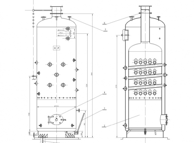
LSH型立式横水管锅炉采用传统的燃烧技术,煤从炉门投入在炉排上燃烧,烟气在炉胆内经横水管交错冲刷.含在烟气中的细小碳黑及灰尘,被多层管束切割落在炉排上重新燃烧,经烟囱排入大气。锅炉特点 (1) 结构紧凑,安装迁移方便,占地面积小,基建投资省。 (2) 烟气纵向冲刷对流管束充分利用受热面,提高锅炉效率。 (3) 由于烟气多回程多循环达到自然除尘的目的。【LSH型立式燃煤蒸汽锅炉—安装使用说明书】 一、结构简介 LSH型立式横水管锅炉采用传统的燃烧技术,煤从炉门投入在炉排上燃烧,烟气在炉胆内经横水管交错冲刷.含在烟气中的细小碳黑及灰尘,被多层管束切割落在炉排上重新燃烧,经烟囱排入大气。 二、锅炉特点 1.锅炉特点 (1) 结构紧凑,安装迁移方便,占地面积小,基建投资省。 (2) 烟气纵向冲刷对流管束充分利用受热面,提高锅炉效率。 (3) 由于烟气多回程多循环达到自然除尘的目的。 安 装 说 明 三、安装前准 锅炉运到现场后,为了迅速起见,安装前必须做好下列工作: 1.组织及人员配备: 锅炉安装必须有专人负责,司炉参加,并配有管工,钳工起重工冷作工电焊工及辅助工. 2.认真学习有关资料: 有关人员认真学习(96)《蒸汽锅炉安全技术监察规程》和锅炉图纸,安装使用说明书等技术文件,以了解和掌握安装起重运行等事项。 3、确定安装地点: (1)安装地点*好选择接近用汽地点,目的在于缩短管路,降低基建成本,减少散热损失。 (2)给排水方便。 (3)燃料及灰渣的存放与运输方便。 (4)锅炉安装运输时通畅. (5)锅炉房的布置应符合劳动部《蒸汽锅炉安全技术监察规程》(96)第八章锅炉房的规定,光线应充足,通风 好,地面不应积水,为运行操作和检修方便, 炉前空余3米,炉后空余2.5-3米,两侧空余不小于1米。 (6)锅炉房内严禁堆放有毒及易燃物品。 (7)锅炉房通向室外的门应向外开,休息室的窗户也应向外开。 4.基础准备: 按地基图进行基础施工,混凝土厚度可依地质情况而定,拌合时砂子、石子混凝土比例适当。 四、锅炉大件的安装 1、设备验收: (1)锅炉运到后,按制造厂出厂清单,对零部件进行清点,根据锅炉图纸及技术文件检查设备的完整性。检查锅炉大件在运输中是否有损坏变形等情况。 (2)锅炉大件在卸车时,底座一端两侧可用钢丝绳捆扎,锅壳封头一端用吊耳穿入另一根钢丝绳,找准起吊中心,让锅炉缓缓升起,起重设备能力不小于10吨,锅炉离车后,应先放置在宽阔的水平面上,锅炉底部应有支架支承,以免损坏管座等。 (3)锅炉就位时,必须处于直立状态,直立时,应用起重设备将锅炉顶部吊耳抓起,切不可捆绑其它任何部位。 (4)锅炉就位后,前后、左、右应保持水平,其倾斜度允许不小于5mm,否则将低的部位用垫铁垫高。 (5)锅炉与基础接触的地方不应有较大的间隙,要求严密不漏风,有间隙的地方应用水泥抹缝。 五、烟囱和烟气调节门的安装 烟囱和烟气调节门安装时法兰之间应垫嵌石棉绳,并采用吊垂线的方法检查烟囱的倾斜度,如有偏差,可在法兰连接处垫平铁丝绳用花蓝螺栓拉紧,注意三根铁丝绸的拉紧程度应大致相等。烟气调节门应转动灵活,定位器拉链不易过高。 六、电器控制柜的安装 电器控制柜上汇集了锅炉上所有电动机的开关按扭,用户可先把电线接到各个电动机,然后接通外来电源,箱壳保持接地,电器控制柜应装在锅炉前方,应紧靠墙壁,以利于监测炉上各个动力仪表,保持操作方便。 七、管道、阀门、仪表及附件的安装 1、按照管道、阀门、仪表图进行锅炉安装。电动泵浇制好基础,接通电源后试运转。 2、安全阀宜在水压试验后安装。安全阀应接装排汽管,将排汽导向锅炉房外安全处。安全阀应铅直装。安全阀应按要求做压力调整。 3、排污管接到排污箱或其它安全之处,管道应固定,防止排污时发生烫伤等事故。 4、总汽阀以外的蒸汽管由使用单位配接,在总阀管道上至少有一个弯头,否则应加装伸缩管,管道外壁应予保温。 5、水位表下部泄水管必须接入安全之处,水位表与锅炉之间的汽水联接阀旋转要灵活不得漏水,水位表处须安装照明设备,便于观察。 6、压力表安装好后在刻度盘上应划出红线,以示锅炉*高许可工作压力,压力表三通旋塞工作灵活,不得漏水,疏水应畅通,压力表管禁止保温。 7、压力表有下列情况之一者,严禁使用: (1)有限止钉的压力表,在无压时,指针转动后不能回到限止钉处;没有限止钉的压力表,在无压时,指针离零位的数值超过压力表规定允许差。 (2)玻璃面破碎或表盘刻度不清。 (3)封印损坏或超过检验期限。 (4)表面泄漏或指针跳动。 使用说明 八、烘炉和煮炉前的检查 在烘炉和煮炉前,必须详细检查锅炉的各零部件,检查项目如下: 1、人孔、手孔是否严密,附属零件装置是否齐全。 2、蒸汽管道、给水管路、排污管路是否完整。 3、烟气通道是否畅通。 九、煮 炉 锅炉各零部件安装完经检查和试运转后,证实具备各部件安全启动条件后即可开始煮炉。 1、煮炉时锅炉内需加入适当的药品,使炉水成为碱性炉水,去掉油垢等污物。 2、煮炉可采用氢氧化钠(NaOH)或磷酸三钠(Na3PO4.12HO)等药品,其用量以锅炉容积每立方米水为计算单位。为每立方米用药水2~3千克。煮炉所用上述药应配成浓度为20%的均匀溶液,不得将固体药物直接加入锅炉。 煮炉所用上述药应配成浓度为20%的均匀溶液,不得将固体药物直接加入锅炉。 3、关闭各部管座及手孔、主蒸汽阀座及水位表泄水阀,打开人孔,把配好的药物溶液一次倒入锅筒内,然后关闭人孔,开启安全阀;让炉内空气和水蒸汽有向外排出的通道。 4、将已处理的水注入锅炉内,进水温度一般不高于40℃,锅筒内水位应到水位表的2/3处,关闭给水阀门,待炉内水位稳定后,观察水位有否降低,并检查锅炉的人孔盖、手孔盖、法兰接合面及排污阀等是否有漏水现象,如有漏水应拧紧螺栓。 5、开启点火门:在炉排端面上全部的范围内铺一层100~200毫米厚的煤渣,在煤渣上用木柴(严禁用带铁钉的木板)油棉纱头或其它引燃物点燃。 6、柴火要逐渐增强,避免骤然加热,在此时间内打开烟气调节门,采用自然通风,锅内应经常保持不起压力,如压力升高到底0.1兆帕(1个大气压)以上,应立即将排汽阀开大放汽,水位下降应立即进水。 7、锅炉压力逐渐升高至0.2兆帕(2个大气压)以下,水温低于70℃后,开启排污阀,将污水全部放出。 十、升 火 1、锅炉在升火前应进行检查(包括有关附件、管道)而后进行给水工作,未进水前必须关闭排污阀,开启主汽阀,让锅炉 的空气可以排出。 2、将已处理的水缓缓注入炉内,进水温度一般不高于40℃,当锅内水 位升至水位表*低水位时,既关闭给水阀门,待锅内水位稳定后,观察水位有否降低。 3、升火时,开启点火门在炉排上放置木柴等引燃物,(严禁铁钉带入)引燃,引燃物燃烧后,调小烟气调节门,待引燃物燃烧旺盛后,开始手工添煤,当煤层燃烧旺盛后继续加煤,加强观察着火情况,适当进行拨火,炉膛负压维持在19.6-29.4帕(2--3毫米水柱),使燃烧渐趋正常。 4、升火时温度不宜增加太快,避免各部分因受热不同而产生过大的热应力,影响锅炉寿命,初次升火从冷炉到升压至工作压力的时间以3-4小时为宜,以后升火时除有特殊情况需急用蒸汽外冷炉不小于3小时,热炉不短于1小时。 5、升火后应随时注意锅内水位,因为加热后水位线会上升,如超过水位表时可进行排污。 6、当开启的安全阀门冒出蒸汽时,即应关闭安全阀,并冲洗压力表弯管和水位表。当气压升到0.1兆帕(1个大气压)时检查人孔、手孔盖是否渗漏,如有渗漏现象应拧紧人孔及手孔盖螺栓,同时检查排污阀是否严密不漏。 7、当锅内气压逐渐升高时,应注意锅炉各部有无特殊响声,若有应立即检查,必要时应立即停炉检查,解除故障后方可继续运行。 十一、供 汽 当锅炉内压力接近 工作压力时,准备向外供汽,供汽前锅内水位不宜超过正常水位,供汽时炉膛内燃烧 稳定。 供汽时应将总汽阀微开启,让微量蒸汽进行暖管,同时将管路上的泄水阀开启,泄出冷凝水,暖管时间根据管道长度 、直径 、蒸汽温度等情况决定。一般不少于是10分钟,暖管时应注意管道的膨胀和管道 支架的 情况,如发现有不正常情况应停止暖管,并解除故障和缺陷,等管路已热,管路冷凝水逐步减少后,方可全开总汽阀,开启时宜缓慢进行,同时注意锅炉各部件有否特殊情况,如有应立即检查,必要时停炉检查。总汽阀有效开启后,应将总气阀轮退还半圈 ,以防热胀后不能转动等缺陷。锅炉供汽后,应再一次检验附 属零件、阀门、仪表有无漏不漏气等情况,工作是否正常。为防止吊水(蒸汽带水)在任何情况下勿使水位淹没玻璃管,同时总汽阀应不开的过大,一般控制在1-2之间,在燃烧情况正常下,即可达到额定出力。 十二、正常运行 锅炉运行时要求做到,锅炉水位正常,蒸汽压力稳定,保持锅炉房的清洁,做好交接班工作,发挥人的因素先进,加强对各机械设备和仪表的观察。确保相当,防止事故发生,注意节约用煤,司炉工应定期总结经验,不断提高操作水平。 1、给水要求: 锅炉给水*好进行锅外化学处理,水质应符合GB 1576-2001《工业锅炉水质》的要求,给水总硬度不大于0.03mmol/L。具体规定见锅炉水质要求。2、锅内水位: 经常注意锅内水位变化,使其保持在正常水位50毫米的范围内,不得高于*高或低于*低水位,水位表内的水位一般有微微晃动现象,如水面静止不动,则水位表内可能有堵塞情况,应立即进行冲洗。 3、水位表: 每班应至少冲洗水位表一次,使水位表玻璃保持经常性清洁,确保水位清淅正确。如发现玻璃垫圈漏水、漏气时,应赶紧填料。如玻璃模糊不清,或水位线看不明确,虽经冲洗仍没有效果时,应更换。 4、给水设备: ⑴运行的给水泵是否正常,应有交接班时开车检验,如有故障立即进行修理。⑵锅炉 给水尽可能采取连续进水,控制水泵出囗阀门细水长流。 5、蒸汽压力: 经常注意压力变化,尽可能保持锅内压力稳定,勿使压力超过*高许可工作压力。 6、压力表: 压力表弯管每班冲洗一次,检查压力表是否正常,如发现压力 表损坏,应立即停炉修理或更换。压力表精度不小于2.5级。 7、安全阀: 1、锅炉应在初次升火时进行安全阀工作压力的调整按照国家劳动总局“蒸汽锅炉安全技术监察规程”143条表7-2规定的压力进行调整。 ①安全阀调整办法,去开口销,除去顶盖,拧松六角锁紧螺母,然后拧动调节螺杆,使弹簧放松或拧紧,来达到安全阀要求的排汽压力。调整后拧紧锁紧螺母,再将其余零件装妥。 ②安全阀的整定压力,型号锅炉额定蒸汽压力为0.4MPa,安全阀的整定压力为0.43MPa。当安全阀达到规定的整定压力后应进行铅封,除非安全阀进行校验时,其它任何时候不允许私自拆卸铅封。 ③在调整安全阀时,锅筒内之水位应较平常水位略低,并预备在安全阀开启后能随时进水。 ④切勿敲击安全阀上的任何部分,开启安全阀只能用阀上的控制杆。 ⑤在安全阀未调整前锅炉有效禁止使用。 应经常注意安全阀的作用是否正常。因水蒸汽的作用,为了防止安全阀的阀盘和阀座粘住,应定期作排气实验,每隔2-4星期应做一次,以校验安全阀的启闭作用。 8、排污阀: 定期排污(参阅第十三“排污”) 9、正常操作; (1)炉膛内正常的燃烧工况应是;火床平整,火焰密而均匀,亮黄色没有冷风的火口, 整齐一致,从烟囱冒出的烟呈浅灰色,。炉膛负压保在19.6-29.4兆帕(2-3毫米水柱),排烟温度在250℃左右。 (2)必须不断地根据用汽情况来调整锅炉负荷和调整燃烧室的运行,证锅炉汽压的稳定,用汽部门应与锅炉间加强联系,用汽量有变化时,*好能提前半小时通知锅炉操作工,当锅炉负荷增加时,先增加烟气调节量,然后增加煤层厚度。当锅炉负荷减小时,先关小烟气调节门,然后减薄煤层厚度。 (3)锅炉宜烧烟煤,烧煤屑(0-5毫米)。燃用的煤*好能过筛,*大煤块尺寸不超过30毫米。 (4)煤层厚度一般由司炉工根据具体情况而定,只有当煤种更换或锅炉负荷剧烈变动时才改变煤层厚度。 (5)燃料的水份越高,着火准备时间就长,对于高挥发份的燃料(烟煤)为防止煤干燥,微小颗粒不燃烧,煤在投入炉膛前应打堆浇水,浇水要均匀,浇水多少应着火,一般以捏成松团为宜,含水量在10-12之间,无烟煤不需浇水。 (6)锅炉和附件(包括管道、阀门、仪表)安全灵敏。 (7)锅炉房清洁整齐、灯光明亮。 (8)交接班双方要做到交得有效,接得认真,同时将交接中的情况和问题记入运行记录薄。 十三、排污一般给水内含有或多或少的矿物质。给水进入锅炉气化后矿物质留在锅内,浓缩到一定程度后,就在锅炉内沉淀下来,蒸发量大运行时间长,沉淀物就多,为防止由于水垢、水渣而引起锅炉损坏,必须给水质量,炉水碱度应不超过1.25毫克当量/升,超过上述范围时,应对炉水进行排污。一般用户在化验条件尚未完备时,根据具体情况定期进行排污,例如每天一次或每班一次等。 排污时应注意下列事项: 1.如二台或二台以上锅炉使用同一排污总管,而排污管上又无逆止阀门,排污时应注意: (1)禁止两台锅炉同时排污。 (2)如另一台锅炉正在检修,则排漏前必须将检修中的锅炉与排污 管路隔断分开。 2、排污应在低负荷、高水位时进行。在排污时应密切注意炉内水位,每次排污以降低炉水位25-50毫米范围为宜。 3、排污完毕关闭排污阀后,应检查排污阀是否严密,检查方法是;关闭排污阀过一些时间后,在离开锅炉的第二只排污阀的管道上用 手试模,若排污阀管道并不冷却则排污阀必有渗漏。 十四、停炉 1、锅炉停炉一般分三种情况: (1)到星期.例假或其它情况,短期内不用蒸汽时应暂时停炉. (2)为清洁、检查或修理,须将炉水放出时应有效停炉。 (3)到特殊情况,为相当起见紧急停炉。 上述三种停炉由于情况不同,要求亦不同,具体分别说明如下: 1、临时故障停炉。先关烟气调节门,打开炉门,投入新煤压火,迅速处理有关故障,如在1-2小时内还无法解故障时,应根据暂时停炉情况处理,继续解除故障。 2、暂时停炉 暂时停炉是有计划进行的,停炉时注意安全和妥善维护设备外,还需做到节煤、节水。 具体步骤如下: (1)停炉前根据用汽情况,可提前20-30分钟停止上煤,关闭调节门。 (2)锅炉冷却后水位要降低,因此停炉时水位宜高于正常水位。 (3)停止供汽后.锅炉内压力降到零再关断总汽阀及烟气调节门。 3、有效停炉: 有效停炉应该是有计划的,一般运行1-3个月应停炉一次,停炉时应注意安全和维护设备.按照暂时停炉的步骤停炉后待炉水慢慢冷却到70以下时,才可把炉水放出.这时须先将安全阀抬起,让锅筒内部与大气相通.如须缩短冷却时间,亦可通过给水管道进入冷水,同时通过排污管道放出热水,但水位不得低于正常水位.炉水放出后,然后开启人孔、手孔用清水冲洗水污。 4、紧急停炉: 锅炉运行中,遇到下列情况之一时,应采取紧急停炉,并通知有关部门。 (1)锅炉水位降低到锅炉运行规程所规定的水位极限以下时; (2)不断加大向锅炉给水及采取其它措施,但水位仍继续下降;(3)锅炉水位已升到运行规程所规定的水位上极限以上时; (4)给水机械全部失效; (5)水位表或安全阀全部失效; (6)锅炉元件损坏,危及运行人员安全; (7)其他常运行情况;且超过安全运行允许范围。 5、紧急停炉着重防止事故扩大,具体步骤如下: (1)先关烟气调节门。 (2)迅速铲出炉膛内的存煤,清出未投入的煤。 十五、维护和保养 1、锅炉在运行期间注意下列各点: (1)不允许正压燃烧或炉膛喷烟,因容易烧坏加煤孔盖。 (2)锅炉底部地平面上不可积水,以防潮湿腐蚀。 2、锅炉运行每隔2-3星期,应进行检查一次。 3、锅炉运行每隔3-6个月后,应停炉进行的检查维修。 (1)对锅炉内外进行检查,如受压部分的焊缝,钢板内外有无腐蚀现象,若发现在严重缺陷应及时修理,若缺陷并不严重亦待下次停炉时修理,如发现有可疑之处,但并不影响安全生产时,应作出记录以便日后参考。 (2)检查完毕后可在着水面涂锅炉底漆,以防腐蚀。 4、锅炉及锅炉底座每年至少油漆一次。 5、锅炉常期不用的保养方法:有干法和湿法两种,停炉一个月以上,应采干保养法,停炉一个月以下可采用湿保养法。 (1)锅炉停炉后放去炉水,将内部污垢有效清除,在炉膛内用微火烘干(注意不要大火),然后将10-30毫米块的生石灰分盘装好,放置在炉筒内,不使生石灰与金属接触,生石灰的重量以锅筒容积每立方米8千克计算.然后将头孔、手孔、管道阀门关闭,每三个月检查一次,如生石灰碎成粉状,即须更换,锅炉重新运行时将生石灰和盘取出。 (2)湿保养法: 锅炉停炉后放出炉水,将内部污垢有效清除,冲洗干净,重新灌入已处理的水至满,将炉水加热到时候100℃,让水中的气体排出炉外,然后关闭所有阀门,气候寒冷的地方,不可采用湿保养法。 十六、水质要求 锅炉水质要求应符合GB1576-2001《工业锅炉水质》的有关规定。具体要求见下表: 十七 .受压元件的检验和水压试验 1、根据《蒸汽锅炉安全技术监察规程》(96),锅炉如有下列情况之一时,就应对各受压元件进行外检查和超压试验: (1)新装、改装和移装后。 (2)停止运行一年以上,需要恢复运行时。 (3)受压元件重大修理后。 (4)根据锅炉运行情况,对设备状态怀疑必须进行检查时。 2、检验前应使锅炉有效停炉。有效清除内部水垢,外部烟灰烟尘, 检查重点如下: (1)锅筒的焊缝是否正常,有无渗漏情况。 (2)锅炉钢板内外有无腐蚀起槽变形等现象。 (3)横管有无弯曲,管端与封头、筒体焊缝处有无裂纹。 (4)给水管、排污管和锅筒一边连接处有无疑点。 3、如腐蚀严重,做超压试验前还应做强度计算。 4、试验压力为工作压力的1.5倍。5、水压试验步骤: (1)水压试验时,进水温度应保持在20-30℃左右,温度过低而使锅炉外壁凝有露水,与发生渗水等不严密情况会混淆不清,增加检查困难,温度太高能使水滴蒸发,使渗漏处不被发现。 (2)水上满后,逐渐升高压力进行一次严密性检查,必要时紧一次法兰、人孔盖和手孔盖的螺母。 (3)水压试验时,水压应缓慢上升,当水压上升到0.4MPa时,应暂停升压, 检查有无漏水或异常现象。然后在升压到0.6MPa,保持20分钟,若压力没有下降,降至0.4MPa进行检查。 (4)发现任何情况都应做上记录,以便降低到大气压力时进行修理。 6、水压试验: 受压元件符合下列情况,即认为合格: (1)受压元件金属壁和焊缝上没有水珠和水雾。 (2)水压试验后,没有发现残余变形。 7、安全措施及注意事项: (1)严格禁止压力超过0.1MPa时紧法兰螺栓。 (2)、在水压试验时,试验场地四周应有特别明显的隔离标志,闲杂人员不得进入试验区。 (3)、在水压试验过程中,水压试验操作员不得站在法兰及阀门的正前面。 (4)、水压试验时与水压试验无关的人员不得站在试验区进行驻看。




